
❤️ Would you like to save this?
By saving, we'll email this post to you for later. Unsubscribe anytime.
McBride Architects designed a family summer camp for a couple and their two adult kids, along with family and friends, situated on six acres along the cliffs of Crabtree Point on the island of North Haven, Maine. This family summer home features three related structures set into a rocky precipice.
The terrain informs the siting of the tree cabins, with each taking advantage of breathtaking views of Penobscot Bay, the Camden Hills, and the craggy coastline. The passage between the cabins helps to connect the inhabitants with the outdoors. Like the island itself, the interiors reflect a combination of utilitarianism and rustic simplicity.
DESIGN DETAILS: ARCHITECT McBride Architects BUILDER Stone Contracting & Building Inc. CUSTOM CABINETS Tidewater Millwork ELECTRICAL CONTRACTOR Tri-Digit Electric PLUMBING CONTRACTOR Rex Crockett TIMBER FRAMING Rockport Post & Beam STYLIST Annie McKendree

The main cabin encompasses the kitchen, living, and dining areas. In the second cabin, you will find the owner’s bedroom suite, while the smallest cabin consists of the bunkhouse. The hallways that connect the home are the pathways and decks that connect the cabins. The open framing and painted plywood flooring in the sleeping cabins echo the utilitarian, rustic nature of the island’s structures.

The windows and exterior doors of this home were sourced from Little Harbor Window.

Above: The wooden deck connects the main cabin to the 410-square-foot primary sleeping cabin. The exterior is clad in locally sourced Alaskan cedar shingles, which will silver over time and blend with the rocky terrain.

What We Love About This Home
This camp-like cabin in Maine provides a timeless retreat for family gatherings. The relation of the house to the surrounding terrain shows just how much thought went into keeping the house’s nature-based design in harmony with the island’s surrounding beauty. Inside, the interiors strike a perfect balance between sophistication and playfulness, creating welcoming spaces that feel both refined and relaxed. What a wonderfully well thought out, well executed design for low maintenance.
Tell Us: Would this camp-like cabin in Maine be your idea of the ultimate family retreat for gathering? Let us know in the Comments below!
Note: Be sure to check out a couple of other incredible home tours that we have showcased here on One Kindesign in the state of Maine: Lakefront retreat provides a serene sanctuary in the quiet woods of Maine and This Maine summer camp offers a fabulous getaway on Long Lake.

Above: The main cabin provides sweeping views across Penobscot Bay toward the mainland. Encompassing 1,180 square feet of living space, the interior features a mix of the owner’s personal furnishings and thoughtfully curated pieces, creating a New England coastal cottage aesthetic.

Above: The overhead light fixture is a Noguchi-style paper lantern. The wall sconces are from Barn Light Electric. The exposed oak beams were salvaged from an old barn in Montana. The structure was built off the island, brought over by barge, and constructed on site. The timber post-and-beam frame was built by Rockport Post & Beam.

The homeowners enjoy showshoeing and cross-country skiing during the winter months. This main cabin is idyllic for use, as it was built for four-season living. For warmth, the architect incorporated a Jotul wood stove and a Warmboard radiant floor-heating system. The rustic-grade white oak flooring was sourced from A.E. Sampson & Son.

Above: This full bathroom is situated just inside the front door, featuring a zinc tub deck and a vintage-style Kohler utility sink with Chicago Faucet fittings. The wall sconces are from Barn Light Electric. The toilet is by American Standard.

Above: The paneling is comprised of inexpensive pine boards, whitewashed with Snowfall White 2144-70 | Benjamin Moore.

Above: The tub and shower fittings were sourced from Strom Plumbing. The bathtub is by Cheviot. The hooks are from Baldwin Hardware Direct.

Above: A built-in niche across from the bathroom provides a drop zone for beach attire.

Above: The large vintage sink is from Strom Plumbing, and the faucet is from Chicago Faucets. The pendant lights are from Barn Light Electric, while the wall sconces are from Schoolhouse.

Above: This open and airy kitchen features only lower cabinets and open shelves, with a focus on the views. The wood backsplash is painted in Cooking Apple Green No.32 – Farrow & Ball. The lower cabinets are painted in Buckingham Gardens 545 | Benjamin Moore. The countertop material of the perimeter cabinets is a vertical-grain Douglas fir. On the custom-fabricated island, the base is reclaimed white oak, and the countertop is zinc.


Above: The cabinets next to the dining area are painted in San Pedro Morning 366 | Benjamin Moore. The stairs lead up to the sleeping loft.

Above: This sleeping loft overlooks the living, dining, and kitchen area of the main cabin. A study is tucked into the dormer windows, offering sweeping views over the coast. The owners use this bedroom during the winter and host guests during the summer.




Above: This three-season structure is unheated, therefore unusable during the winter months. The plywood flooring is painted in Cedar Grove 444 | Benjamin Moore, which is an exterior-grade porch and floor enamel.

Above: The wall hooks are from Baldwin Hardware Direct.

Above: In the bathroom, a prefabricated terrazzo shower pan was selected for its simplicity and cost-effectiveness. It was sourced from Florestone. The sink and shower sittings are from Chicago Faucets. The sink is by Kohler, while the toilet is by American Standard. The wall sconces are from Barn Light Electric.


Above: This three-season bunkhouse offers 360 square feet of living space, offering two bedrooms and their own sinks. This space is used to accommodate the owner’s adult children and guests. The plywood floors are painted in Happily Ever After 173 | Benjamin Moore.

Above: The floors of the secondary bedroom are painted in Lazy Sunday 803 | Benjamin Moore. The rooms are connected via a double-sink bathroom. The doors were sourced from TruStile, while the antique porcelain doorknobs are from Crown City Hardware.

Above: This shower sits across from the toilet, with a direct view of the ocean. The shower fittings were sourced from Chicago Faucets.






Above: From this vantage point, you can see the three structures of the owner’s camp-like cabin retreat in Maine. The couple is in their 60s, and one of them had grown up vacationing here with her parents. The parents had a reconstructed old post-and-beam Vermont barn on a peninsula. As her extended family grew, they required space and privacy from the original home. So they purchased undeveloped property adjacent to her parents’ to build their own dream retreat.


PHOTOGRAPHER Read McKendree

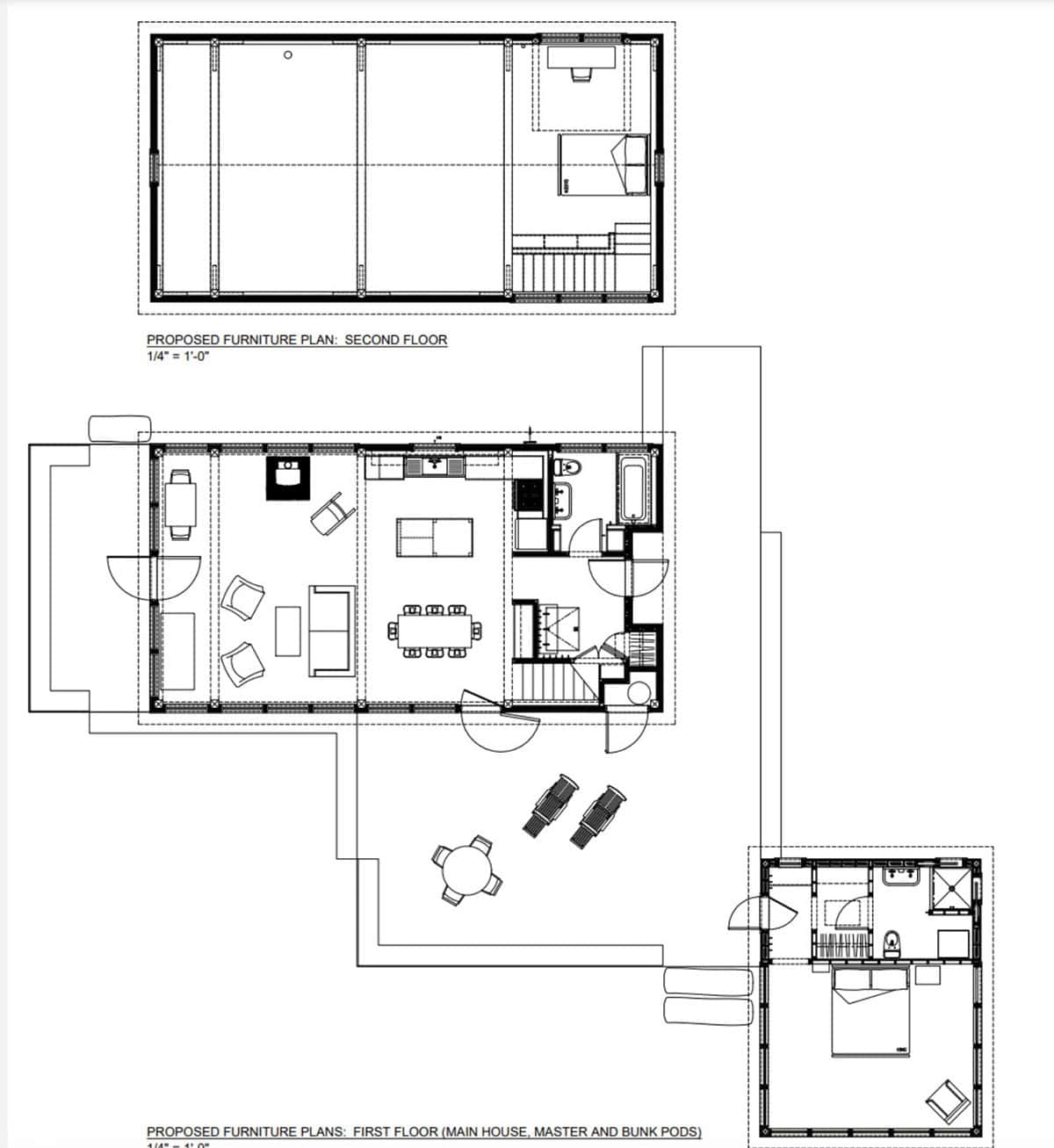
Above: Floor plans of the main house and primary sleeping cabin.

Above: The floor plan of the bunkhouse.

2 comments