
❤️ Would you like to save this?
By saving, we'll email this post to you for later. Unsubscribe anytime.
This wonderful backyard work-from-home shed, designed by Linework Architecture, is located in Seattle, Washington. WORK_shed provides a simple yet elegant space where two working parents can find space of their own while working from home and managing their children.
The WORK_shed began as an email from a former client with the subject, “Tiny Project?” With a toddler in hand, a baby on the way, and a compact 1919 vintage bungalow running tight on space, these work-from-home clients needed a serious upgrade to their existing office setup. Until now, they had been remote co-working from a cramped and dark, 110-square-foot backyard shed.
Products/Materials
Polycarbonate panels for clerestory walls
Western red cedar shingles for exterior wall cladding
Birch plywood interior paneling and floors

The request was for two autonomous, acoustically separated workspaces that would uplift the everyday experience and place specific attention on good, even light, for frequent video calls.
The clients wanted to build it themselves with the help of a retired family member; it needed to be inexpensive and could be located on the existing shed platform in a corner of the property, shoehorned between an existing heritage tree and a privacy fence. The design team took the tall order somewhat literally.

PROBLEM SOLVING
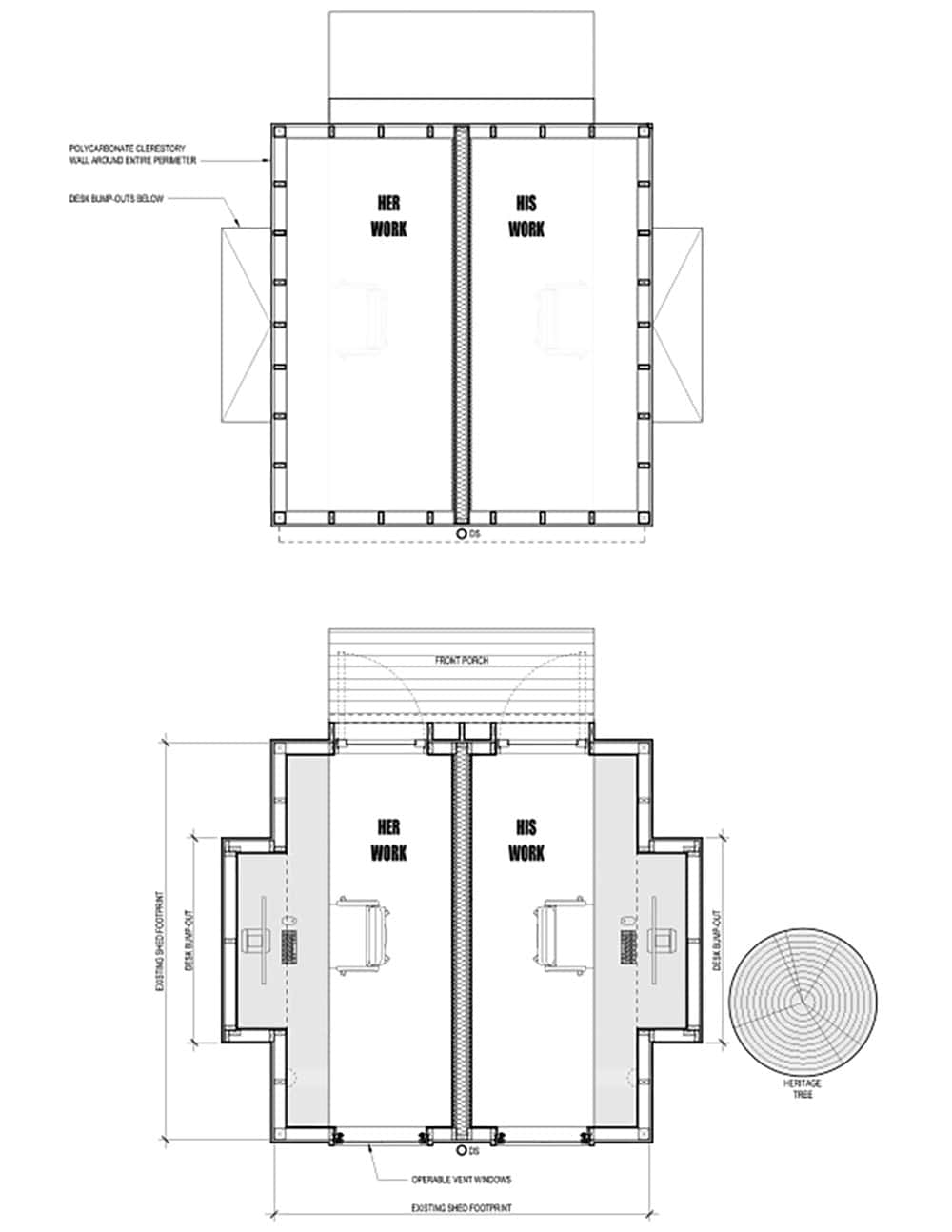
Split in half, the shed platform’s 55-square-foot footprint for each home office was too tight. However, the key to making it all work was a pair of cantilevered saddlebags deep and wide enough to create a full-depth desk area while also allowing space for circulation and a separate sitting area. The walls were re-framed to the height limit, cladding the section above the privacy fence entirely in polycarbonate to provide dramatic, filtered light and abstracted views into the adjacent heritage tree.
The resulting space is uniquely private—acoustically and visually—yet feels intrinsically connected to the landscape and changes of the day and season. And, of course, it’s great for video calls.

ENVIRONMENTAL SENSITIVITY
By utilizing the existing shed platform to provide two vibrant new work spaces the design approach eliminated the need for a more carbon intensive and costly full house renovation/addition while keeping the character and charm of the existing house intact. The design preserves the existing heritage tree root system, and the clerestory largely eliminates the need for artificial light during working hours.

SOCIAL IMPACT
While it’s hard to qualify the community impact of a private structure, working from home in a dedicated, separate, and uplifting space allows the parents to be more present every day for their family. In addition, the construction of the WORK_shed provided a memorable and unique experience for the three generations who worked together to build it.

The clerestory creates soft and shifting patterns of light and shadow unique to each moment and season.

What We Love About This Home Office
This Seattle backyard home office offers a compact yet comfortable space for productive, enjoyable work-from-home days. Thoughtful layout, abundant natural light, and a seamless connection to the surrounding garden create an inspiring environment that feels both private and open. Every detail, from acoustically separated workspaces to clever use of space, enhances focus while maintaining a sense of calm and comfort.
Tell Us: What do you think of the overall design of this backyard home office? Let us know in the Comments below!
Note: Check out a couple of other cool backyard home office projects that we have featured here on One Kindesign: Amazing Washington forest house with a steel tower office on train tracks and This backyard reading retreat in Seattle offers an amazing oasis in the city.


His and her acoustically separated office spaces open to a small “front porch” for happy hour and keeping an eye on the kids playing in the yard.

Like the lantern room in a lighthouse, the clerestory radiates light in the evening, becoming a beacon in the landscape.


EXISTING AND CONSTRUCTION

Existing 1919 bungalow.

The clients requested something unique that could also be built largely with friends and family labor. The architects designed a space using off-the-shelf building materials and simple, straightforward detailing to achieve a desired quality and ensure the design intent could be carried out by a relatively inexperienced construction team.


Construction became a true family project with three generations of helping hands.






Bump-outs make it all work.

The owner and his father taking the original structure down to its platform







One Kindesign has received this project from our submissions page. If you have a project you would like to submit, please visit our submit your work page for consideration!

0 comments