
❤️ Would you like to save this?
By saving, we'll email this post to you for later. Unsubscribe anytime.
This reimagined ski house by architectural studio Birdseye, in collaboration with Brooke Michelsen Design, was rebuilt on its existing foundation on the slopes of Stratton Mountain Resort in southern Vermont. Now encompassing 5,000 square feet, the home replaces a 1960s structure that was beyond repair and reduced to the foundation and first-floor framing before being completely rebuilt.
Thoughtful additions to the original footprint, along with a new landscape and entry auto court, are carefully integrated within the parcel’s wetland buffers. The home takes cues from the scale and architectural language of adjacent mid-century homes.
DESIGN DETAILS
ARCHITECT Birdseye
BUILDER Vermont Barns
INTERIOR DESIGNER Brooke Michelsen Design
ROOFING & SIDING 802 Roofing & Exteriors
LANDSCAPE ARCHITECT Wagner Hodgson Landscape Architecture

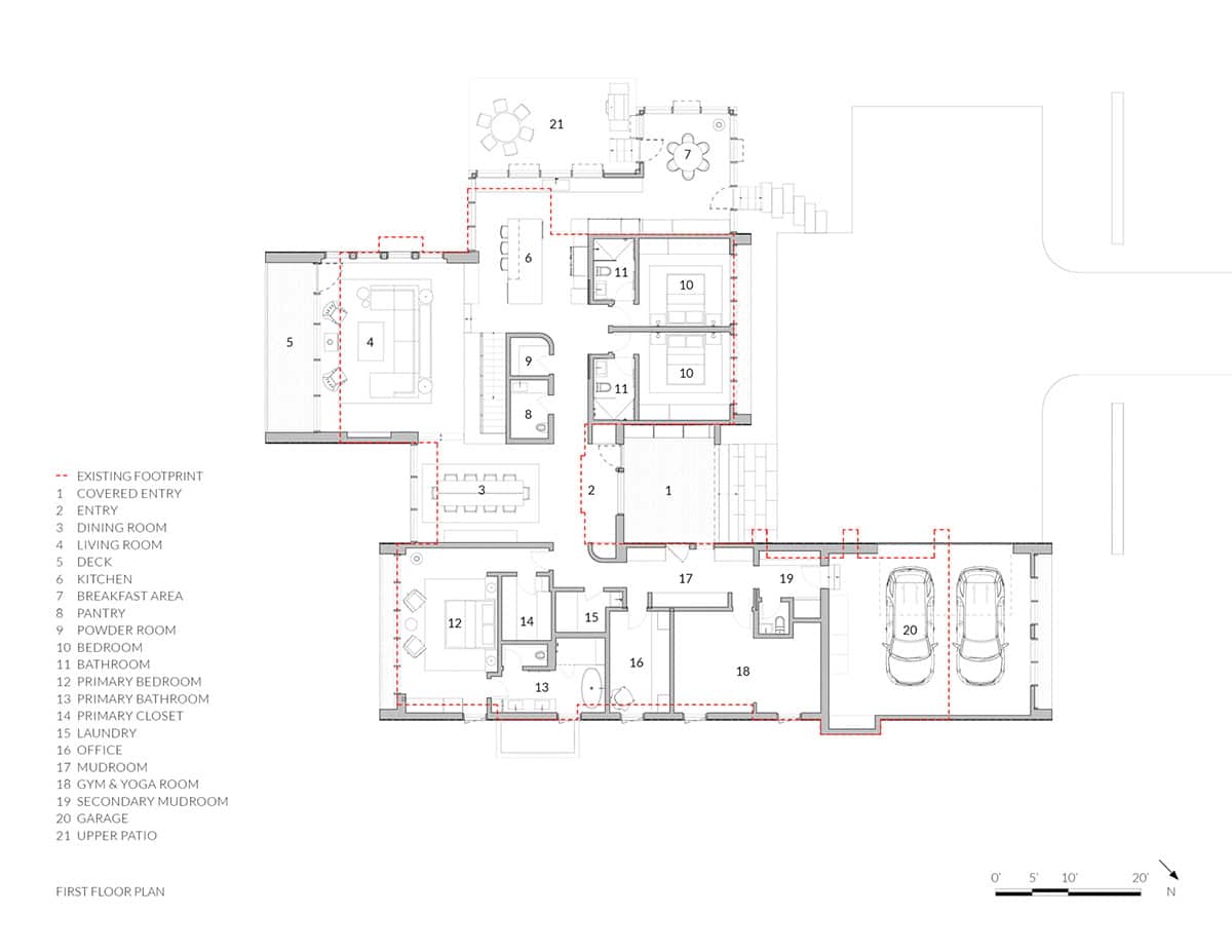
The main level includes a sunken living room with a wood-burning stove, a kitchen and breakfast area, an owner’s bedroom suite, two ensuite bedrooms, a powder room, a garage, a mudroom, an entry bathroom, an office, and an exercise room.
A Home Built for the Mountain Life

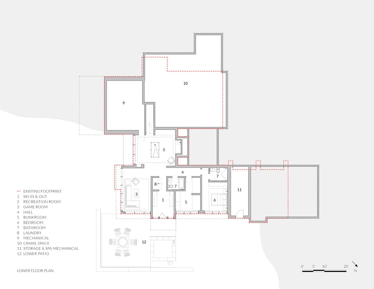
The lower walk-out level includes a ski room with direct slope access, a game room, a TV lounge, a bunk room, a bedroom suite, a bathroom, and a laundry area. Exterior spaces include a living room porch, a breakfast terrace, a fire pit, and a hot tub terrace.
A Modern Take on Mid-Century Style

Conceptually, the home’s design draws inspiration from iconic midcentury ski houses, known for their expansive slope-side glazing, gabled roofs, wood siding, and walk-out lower levels. The chalet is composed of two primary gabled volumes clad in natural wood, connected by a perpendicular, contemporary black bar that introduces a more refined, modern contrast.

Repurposed Douglas fir cladding, applied as a chevron-patterned rainscreen, references the material detailing of mid-century architecture while also nodding to the siding pattern of the original structure.
Warm, Locally Crafted Interiors

The interiors are warm and cohesive, defined by white oak floors, walls, and ceilings. Custom-built doors, bookshelves, kitchen cabinetry, window seats, bunk units, and storage elements are finely crafted and integral to the interior experience. Custom furnishings were created by local artisans, with all interior wood sourced locally from New Hampshire.
Light & Airy Kitchen

Sustainable Design
Ecological sensitivity and site integration were integral to the design. Repurposed snow fencing in a chevron pattern clads the exterior as a rainscreen, while weathered siding and deep shadow lines create a dimensional, natural backdrop for the surrounding terrain.
The landscape is composed entirely of native, drought-tolerant plantings that require no irrigation. A rainwater collection system distributes water evenly, mitigating erosion. Reusing the existing concrete foundation and infrastructure helped to minimize material waste and lower the project’s carbon footprint.
High-performance building systems further enhance efficiency, including a fossil fuel-free geothermal HVAC system, triple-pane windows, thermally broken R-40 walls and R-60 roof assemblies, and low-VOC finishes. A mechanical fresh air exchanger, LED lighting, and operable windows with solar shading enhance the indoor experience.

What We Love About This Home
What we love most about this home is how the architecture honors its mid-century roots while feeling completely of the moment, the chevron-patterned repurposed Douglas fir cladding being a perfect example. Inside, the commitment to locally sourced white oak on the floors, walls, and ceilings creates an enveloping warmth that feels genuinely crafted rather than decorated. The way the lower level opens directly onto the ski run makes this home feel less like a structure placed on the mountain and more like a natural extension of it.
Tell Us: What details do you love most in this reimagined Vermont ski house? Let us know in the Comments below. We enjoy reading your feedback!
Note: Check out a couple of other amazing home tours that we have showcased here on One Kindesign in the state of Vermont: A peek inside this luxury dream home in Vermont’s Green Mountains and A modern Scandinavian house with amazing Green Mountain views in Vermont.






Owner’s Bedroom Suite



Guest Bedrooms & Bathrooms






Game Room & Lower Level


Mudroom & Ski Room


Exterior & Twilight Views

The two cantilevered gables overlook the adjacent ski run, hovering above the rugged landscape, while the lower walk-out level integrates seamlessly into the sloping topography. A storefront glazing system and refined panel detailing, paired with natural wood cladding, establish a grounded yet contemporary architectural language.



Before the Ski House Remodel

Vermont Ski House Site Plan & Floor Plans



PHOTOGRAPHER Michael Moran Photography

1 comment