
❤️ Would you like to save this?
By saving, we'll email this post to you for later. Unsubscribe anytime.
The Falcon Ledge Residence, located in Austin, Texas, was designed by Alterstudio Architecture to reflect the character and aspirations of its occupants. The house presents an opportunity to live in an unusual circumstance, connected to the landscape while rising out of it, and an inspiration for a life lived with unanticipated pleasures.
Newly married and planning to start a family, the owners enjoy a daily routine connected to the outdoors without having to rely on curtains to maintain their privacy. Overcoming the obstacles of limited budgets, contractors unused to careful construction, and a complex property on which to build has underscored the success of the final construction.
DESIGN DETAILS: ARCHITECTURE Alterstudio Architecture INTERIOR DESIGN Alterstudio Architecture CONTRACTOR Matt Sitra Custom Homes LANDSCAPE ARCHITECT Aleman Design Build STRUCTURAL ENGINEER MJ Structures MECHANICAL ENGINEER Positive Energy GEOTECHNICAL ENGINEER Capital Geotechnical Services PLLC

The home was inserted into an existing landscape with the most minimal of interventions. It provides a model for an innovative building sequencing on a property long written off as a possible home site.

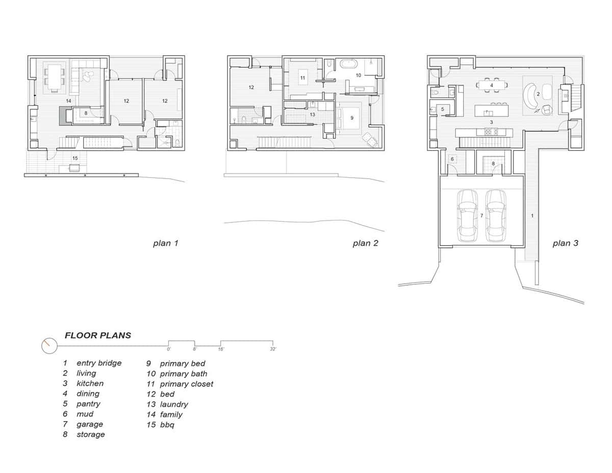
The first act required the construction of a platform adjacent to the street from which construction could be staged. This later became the garage and bridge connecting a tall, taught home, organized upside down, with the main living spaces on the top floor and the private spaces below.

The form of the building was in many ways determined by the logic of its construction and sequencing, and the result is an unexpected tower rising above the tree canopy.

Surrounded by suburban developments, the 3,813-square-foot home is located in a neglected ravine, overlooked because the property falls off precipitously from the street’s curb.

Here, the owners are afforded the opportunity to live immersed in nature, from which one might survey its many pleasures, under, inside, and above the thick foliage—albeit adjacent to very ordinary, suburban conditions.

The project begins with an efficient plan and compact volume that is oriented for energy efficiency and optimizing relationships with the natural surroundings. Deep recesses in the otherwise unmitigated building envelope allow for framed views through a taught exterior skin of vertical steel panels—employed to age gracefully while resisting the negative consequences of weathering.

Light from multiple sources tempers the character of rooms over the course of the day, and cross-ventilation conditions the atmosphere of the interiors. Operable windows to promote cross ventilation, glazing strategies to optimize daylight and protect against excess heat gain, and filtered indoor air is present throughout the house.

In addition to its innovative staging, the house was designed to utilize standard construction techniques and practices wherever possible, and is augmented only where particular conditions warranted special attention.

The design begins with an efficient plan and compact volume, and is constructed using traditional lumber framing and standard wood trusses.

Special attention was paid to create a taught envelope and careful recesses for light and view. Normative building systems are employed throughout the building to maintain affordability, but special elements and a careful attention to detail allow it to present a more purposeful character while being constructed at the median cost of construction for the area.

What We Love About This Home
We love how this Austin home by Alterstudio Architecture transforms an “impossible” hillside lot into a stunning modern residence, thanks to innovative construction sequencing and an upside-down floor plan. The top-level living spaces feel like a tree-top perch, offering elevated views and a light-filled, contemporary vibe. That unexpected vertical tower rising above the tree canopy gives the Falcon Ledge Residence its bold architectural identity, making it a truly one-of-a-kind Texas home.
Tell Us: What are your overall thoughts on the design of this home? Let us know in the Comments below!
Note: Check out a couple of other fabulous home tours that we have showcased here on One Kindesign in the state of Texas: A 1960s midcentury home makeover in Texas in perfect harmony with nature and Lake Travis home gets beautifully updated with organic and earthy palette.










ACCOLADES
Falcon Ledge Residence received a 2025 AIA Austin Design Award of Excellence, the 2023 Residential Architect Design Awards for Merit in the category of Custom Home / More Than 3,000 Square Feet, and the 2023 Texas Society of Architecture Design Award.

PHOTOGRAPHER Casey Dunn


One Kindesign has received this project from our submissions page. If you have a project you would like to submit, please visit our submit your work page for consideration!

0 comments