
❤️ Would you like to save this?
By saving, we'll email this post to you for later. Unsubscribe anytime.
DNM Architecture, together with Andrea Lackie Design, has remodeled this dreamy mountain lodge-style house into a family retreat on the shores of Lake Tahoe, Nevada. Originally built in the 1940s and altered in the 1980s, this vacation home has been in the family for decades but was in dire need of modernization.
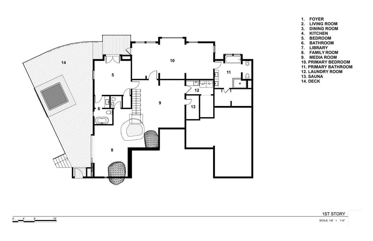
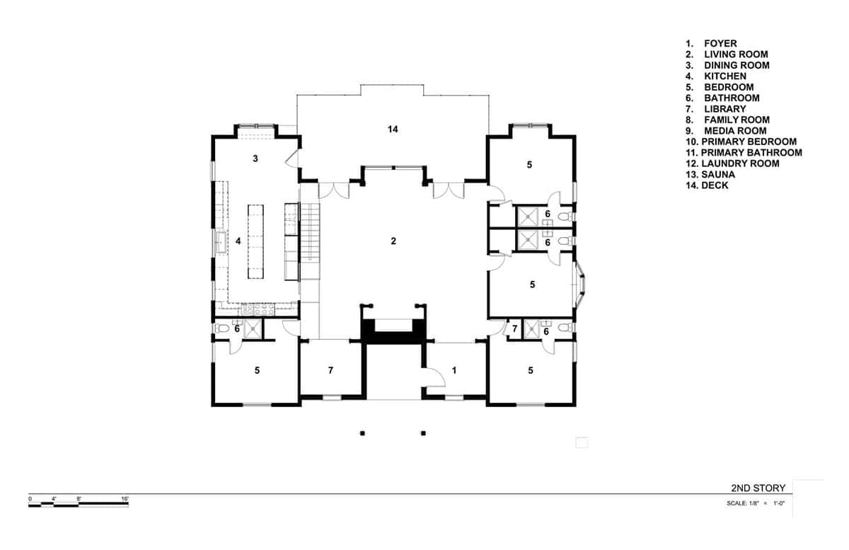
The upper floor features a timbered great room with a granite fireplace, flanked by four guest bedroom suites and a kitchen. The lower floor contained two more bedroom suites, a small media room, a sauna, a laundry, and … boulders! Continue below to see the before images and floor plans.
Project Overview
Home Type: 1940s cabin
Intended For: An extended family vacation retreat
Setting: Incline Village, Nevada, on the scenic shores of Lake Tahoe
Size: 4,000 square feet (372 square meters), six bedrooms, 6½ bathrooms
DESIGN DETAILS
ARCHITECTURE DNM Architecture
INTERIOR DESIGNAndrea Lackie Design
CONSTRUCTION Sawtooth Builders
STRUCTURAL ENGINEERS DEI Engineers
PLANNING Ogilvy Consulting
KITCHEN Design Henrybuilt

While remodeling took place throughout the house, a few major design moves define this project.
- The kitchen was gutted and expanded into a former bar area. A false ceiling was removed and replaced by tongue and groove cedar planking to complement the living room ceiling. Henrybuilt designed and supplied semi-custom Walnut cabinetry.
- The downstairs walls were removed, and a new, modern floating staircase was installed to expose the boulders and create a new media room and lounge. A glass floor at the top of the stairs dramatically highlights the boulder below.
- An expansive deck with lake views was added, connected to the lower lounge. Planters and an out of date metal rail on the upper roof deck were also replaced by new glass railing to open up lake views.
- The four very compact guest baths were completely remodeled with new shallow, custom wall-mount vanities, fixtures, and tile to create an integrated, highly efficient space.
- In addition to the architectural changes, extensive foundation repairs were performed, windows and doors were replaced with energy-efficient units, and new HVAC systems were installed to save energy and improve comfort.
While enjoying updated interiors and a new “boulder room” and deck, the home retains its essential Tahoe lodge character, connecting its context and its past with the needs of its current and future occupants.

What We Love About This House
This home is a beautiful tribute to family traditions and collections, enhancing the original structure rather than replacing it. It fits naturally within its stunning setting without overwhelming it, and the exposed interior boulders are celebrated as sculptural focal points. The owners’ existing furniture and objects integrate seamlessly into the design, while warm timber, layered textures, and lake views create a grounded, inviting retreat. Absolutely fabulous!
Tell Us: What details in this home renovation project do you love most, and what would you like to have seen done differently? Let us know in the Comments below!
Note: Be sure to check out a couple of other fascinating home tours that we have featured here on One Kindesign in the state of California: Dreamy mountain chalet in the pristine beauty of the Sierra Nevada Mountains and Mountain modern house nestled on an idyllic forested property in Lake Tahoe.

Above: Opposite the sweeping lake views, a rugged stone fireplace anchors the space, flanked by the home’s main entry on one side and the wife’s office on the other.

Above: This once-frilly chair was updated with a more streamlined aesthetic after its outdated skirt and back cushion were removed. Reupholstered in a textured blue-gray striped fabric, it’s paired with a floor lamp and a painting from the homeowners’ collection to form a cozy reading nook.
Home Office

Above: In the wife’s office, the desk and chair were already existing in the home, with the chair being reupholstered in new leather. The existing built-ins were reclad in walnut with flat panel doors to echo the kitchen. The pieces that fill the shelves are books and momentos the owners already had, rearranged to give them a new life.




Above: Glass railings on the remodeled deck help to keep the views from the great room open.

Beautiful Walnut Clad Kitchen

Above: A 2K polyurethane finish was applied to the walnut cabinetry that was custom fabricated by Henrybuilt. This provides added protection against everyday wear, including steam in the frequently used kitchen.





Above: In the dining area, antique chairs were reupholstered in Perennials fabric, partially surrounding a custom oval table from Loggia in San Francisco, which anchors the space. A nearby window seat provides an inviting spot to hang out long after meals.
Bedroom With A View

Above: The homeowners’ extensive collection of family heirloom furnishings can be found throughout the home. An antique chandelier, once in the living room, found new life in one of the four upstairs bedrooms. The ceiling is clad in the same wood used in the kitchen. The color palette was inspired by the surrounding water and sky views.

Above: In the owner’s bathroom, a push-panel mirrored cabinet (the two in the center conceal medicine cabinets) above the quartzite slab sink, along with custom walnut shelving, provides space-saving storage. Measuring just 6 feet wide and 40 inches deep, the compact space is carefully optimized, with a 10-inch-deep vanity paired with wall-mounted faucets to maximize functionality.

Above: In this guest bedroom, two full-size beds are paired with custom headboards upholstered in a deep-blue nubby fabric and dark wood trim. The lamp is from Rejuvenation.

Lower-Level Entertainment Spaces

The walk-out lower level includes a media room, the boulder room, a guest suite, and a compact powder room.








Above: Semi-concealed boulders anchor the lower level, where custom shelving showcases minerals and shells collected by the homeowner’s father. Le Corbusier chairs rest on oak flooring, their clean lines complementing the cool bluish tones of the exposed stone.

Above: The house was built atop and around massive boulders, a hallmark of homes from this period in the area. The design further exposed the natural stone, carefully executed to ensure the home remained fully sealed from the elements. Subtle uplights set within the gravel bed illuminate the rock formations at night.
Moody Powder Room

Above: This dark, moody powder room features a plaster wall treatment. The pendant lights from De Sousa Hughes illuminate a sculptural patinaed metal sink from Stone Forest set within a beautiful custom walnut vanity.

Deck With Views of Lake Tahoe


Above: A second-story deck with a glass balustrade was added to the home, extending the living space outdoors, preserving uninterrupted views of Lake Tahoe.







Before The Mountain Lodge Home Remodel






Floor & Section Plans



PHOTOGRAPHER Christopher Stark

3 comments