
❤️ Would you like to save this?
By saving, we'll email this post to you for later. Unsubscribe anytime.
This modern new home, by Specht Novak Architects, is set within one of Austin’s most authentic, charming neighborhood’s, Zilker Park. The Zilker Park House reframes the urban single-family home with modern clarity, measured scale, and careful attention to context.
In an older, eclectic neighborhood made up of historic bungalows and cottages — now besieged by larger contemporary builds, Specht Novak designed a home that is distinctly new while remaining visually compatible with a warm, finely detailed material palette and sized to fit in with its neighborhood.
DESIGN DETAILS:
ARCHITECT Specht Novak
STRUCTURAL ENGINEERING Fort Structures
LANDSCAPE ARCHITECTURE Open Envelope Studio

Austin’s Zilker neighborhood is a fringe urban district where downtown intensity meets a landscape of small, single-family lots. In this context, the pressures of densification often result in houses that are oversized and featureless. These builds, pushed to their legal maximums and clad in materials such as white and stark stucco, often feel out of sync with their older, charming, surroundings. The Zilker Park House proposes a more sensitive alternative through measured scale and a tactile material palette.

The design prioritizes its relationship to the streetscape through modulated massing. Rather than presenting a monolithic street wall, the facade is a composition of rectilinear forms that shift to break down the apparent scale. The volume remains low on the north side to match the height of the adjacent bungalow, then steps up toward the south to meet a taller neighboring structure and a canopy of heritage oaks.

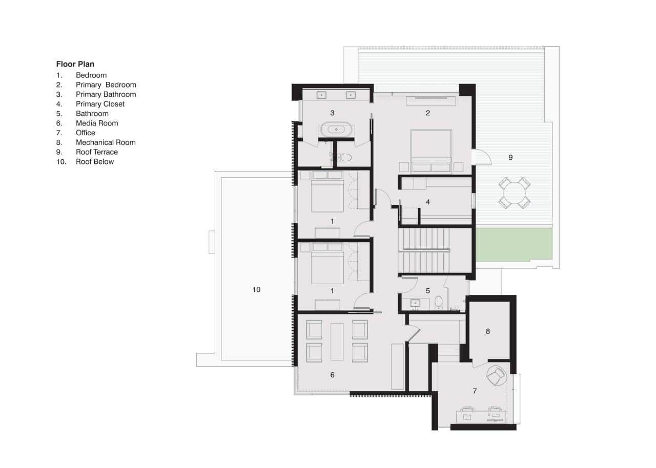
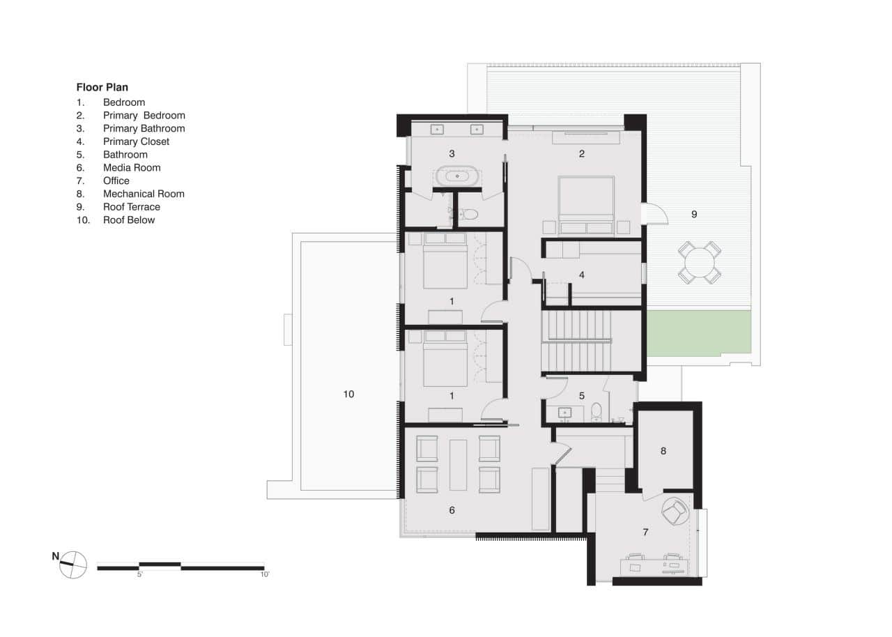
Because the narrow site required a street-facing garage, it is treated as a graphic building block within the composition rather than a utilitarian intrusion. At the ground plane, the house remains private and secure, punctuated only by a single glazed entry point. This solid base is balanced upstairs by a large corner window in the playroom that opens the interior to the surrounding trees.

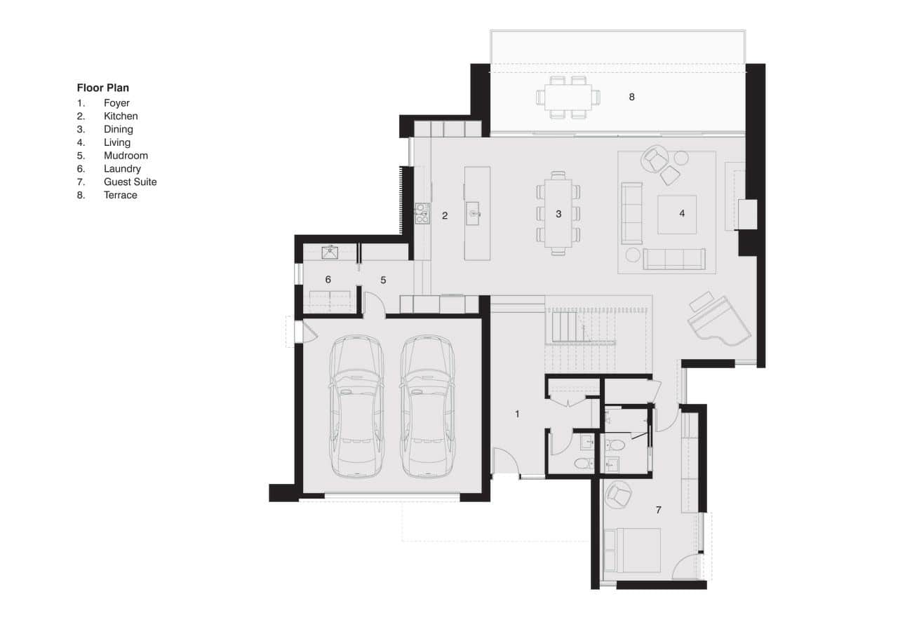
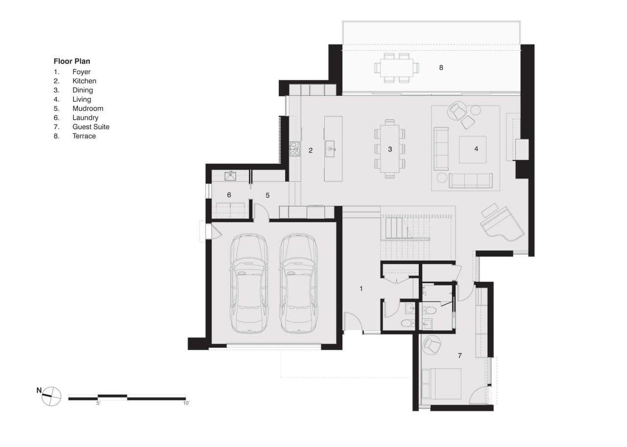
Materiality grounds the house in local tradition and a finer human scale, utilizing natural Texas brick and vertical wood battens with dark trim to emphasize craftsmanship. These textures flow inside to the interiors of the 3,300-square-foot home, where the brick is brought inside, and the batten motif is repeated in a vertical screen. This screen diffuses light from a large central skylight down through the stair core.

The plan responds to a fifteen-foot drop from the front of the lot to the back. Interior floor levels and exterior terraces step down the hillside, a sequence that begins at the entry and flows through a recessed living area toward a wide expanse of operable glass. Outside, xeriscaped platforms cascade toward a pool at the rear of the yard. This technique turns difficult terrain into a positive feature that preserves privacy while offering long views toward the tree canopy and downtown Austin beyond.

By combining site-specific solutions with material warmth, the Zilker Park House serves as a model for context-responsive urban infill. It proves that full site utilization and modern spatial compositions can be attained while preserving neighborhood character.

More than a single residence, the Zilker Park House offers a replicable model for context-responsive urban infill. It demonstrates how thoughtful design can achieve privacy, openness, and full site utilization on constrained lots, while preserving mature trees and strengthening the architectural character of an eclectic neighborhood.

What We Love About This Home
The Zilker Park House steps gently down its steep, narrow lot, creating seamless indoor-outdoor flow while preserving heritage oaks and privacy. Natural Texas brick and vertical wood root the home in local tradition, while cascading outdoor platforms turn challenging terrain into livable spaces. Inside, abundant light and careful sightlines connect every level to the treetops and sky, showing how modern design can make a tight urban lot feel open and serene.
Tell Us: What are your overall thoughts on the design of this Austin home? Let us know in the Comments below!
Note: Be sure to check out a couple of other amazing home tours that we have highlighted here on One Kindesign in the state of Texas: Texas Hill Country views are the priority at this serene hillside hideaway and A 1960s midcentury home makeover in Texas in perfect harmony with nature.


















PHOTOGRAPHER Leonid Furmansky
Austin Home Drawings







0 comments